ID CP1778803

Teren - Voronet | Gura Humorului | BUCOVINA

ID CP1778803

330,000 €

Teren de 14,430 mp de vânzare
Periferie, Gura Humorului
14,430 mp

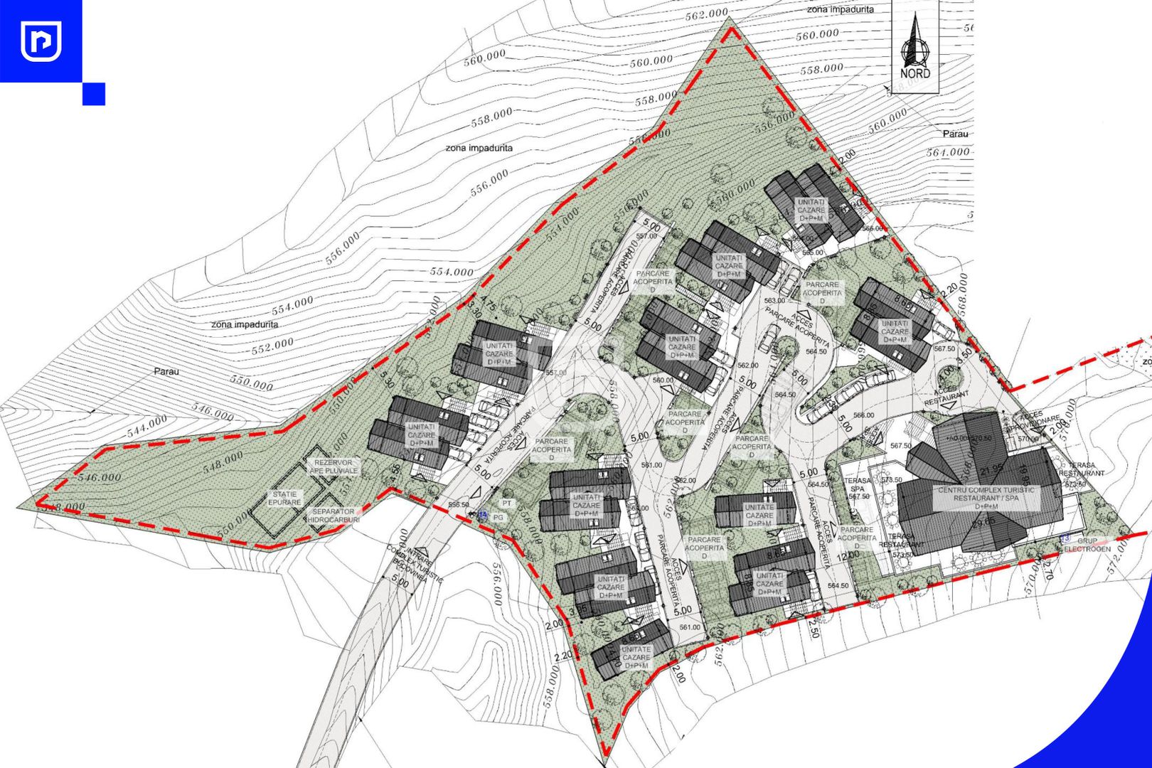
Complexul Turistic Bucovinean - Descoperă Bucovina într-un mod inovator!

Vrei să investești într-o oportunitate de afacere unică și atractivă? Te invităm să descoperi Complexul Turistic Bucovinean, o destinație turistică inovatoare care aduce în prim plan tradiția și ospitalitatea bucovineană.

Ce vei găsi în Complexul Turistic Bucovinean:

Planul de afaceri pentru construirea Complexului Turistic Bucovinean are ca scop dezvoltarea unei destinații turistice inovatoare și atractive, care să ofere servicii de cazare, recreere, alimentație și divertisment într-un mediu specific bucovinean.

Acest complex va consta din următoarele componente principale:

Clădirea Principală (Centru Complex Turistic):

Funcțiuni principale:

Recepție, Spații de primire a oaspeților, Piscină și Spa, Restaurant.

Funcțiuni secundare:

Birouri administrative, Spațiu comercial, Vestiare și grupuri sanitare pentru clienți.

Funcțiuni conexe:

Bucătărie pentru restaurant, vestiare și grupuri sanitare pentru personal, spații de depozitare, spații tehnice pentru utilități, spațiu pentru aprovizionare, spălătorie și curățătorie.

Case cu Unități de Cazare (20 bucăți):

Unități de cazare de tip cameră dublă cu două locuri.

Unități de cazare de tip apartament cu două camere și patru locuri.

Alte Caracteristici:

Acces auto prin drum de acces cu două benzi.

Acces vertical cu 2 ascensoare pentru persoane și marfă.

Utilizare a tehnologiei Braille pentru persoanele cu deficiențe de vedere pentru a interacționa cu echipamentele și computerele.

Echipamente de încălzire și energie regenerabilă, inclusiv panouri solare și pompe de căldură sol-apa.

Sanitare cu senzori de prezență pentru economisirea apei.

Inovația din acest proiect constă în:

Oferirea unor servicii de masă complete, inclusiv mic dejun, prânz și cină, precum și un restaurant bine echipat pentru pregătirea și servirea acestor mese.

Asigurarea intimității pentru oaspeți, cu unități de cazare individuale și acces separat.

Fiecare unitate de cazare are o bucătărie proprie, permițând oaspeților să-și pregătească propriile mese.

Disponibilitatea saunei umede și a saunei uscate.

Crearea unui "sat de vacanță" pentru perioade scurte de odihnă.

Parcări acoperite estetice cu spații de încărcare pentru mașinile electrice.

Implementarea unui sistem POS pentru centralizarea datelor între recepție, restaurant și bucătărie.

Management îmbunătățit pentru bucătărie, inclusiv marcarea produselor gata pregătite.

Energie electrică din surse regenerabile, inclusiv panouri solare.

Pompe de căldură eficiente pentru încălzirea apei și a clădirii.

Aceste inovații vor face din Complexul Turistic Bucovinean o destinație atractivă pentru turiști și vor contribui la creșterea veniturilor și a competitivității pe piața turistică.

Citește mai mult

  • Tip teren
    Pădure
  • Suprafață teren
    14,430 mp
  • Front stradal
    55.0 m
  • Număr fronturi stradale
    1
  • Deschidere la
    Drum principal
  • Distanța față de drum județean
    1.0 km
  • Clasificare
    Intravilan
  • Valoare incidență
    9.53
  • Disponibilitate
    Imediat
  • CUT
    2.4
  • POT (%)
    80.0
  • Certificat de urbanism
    Da
  • Are demisol
    Da
  • Are mansardă
    Da

Facilități

Acces auto
Oportunitate de investiții
Străzi de pământ
Străzi pietruite
Utilități în zonă
Vedere panoramică
Vedere spre munte
Paval Robert - RP Imobiliare
Paval Robert
Administrator

0747417740


Solicită chiar acum o vizionare
Telefon
Sună acum Solicită vizionare
Necesare:

Site-ul nu poate funcționa corect fără aceste cookie-uri. Vezi cookie-urile

Statistică:

Strângem statistici anonime despre voi, vizitatorii unici, pentru a vă îmbunătăți experiența dumneavoastră. Vezi cookie-urile

Marketing:

Pentru a ne promova mai eficient serviciile noastre, folosim cookies pentru a vă identifica și a vă oferi proprietăți și servicii personalizate. Vezi cookie-urile

Acest site folosește cookies, află detalii. Alege ce tipuri de cookies dorești să permitem: